1195 Georgia A-CImperial Beach, CA 91932
Due to the health concerns created by Coronavirus we are offering personal 1-1 online video walkthough tours where possible.




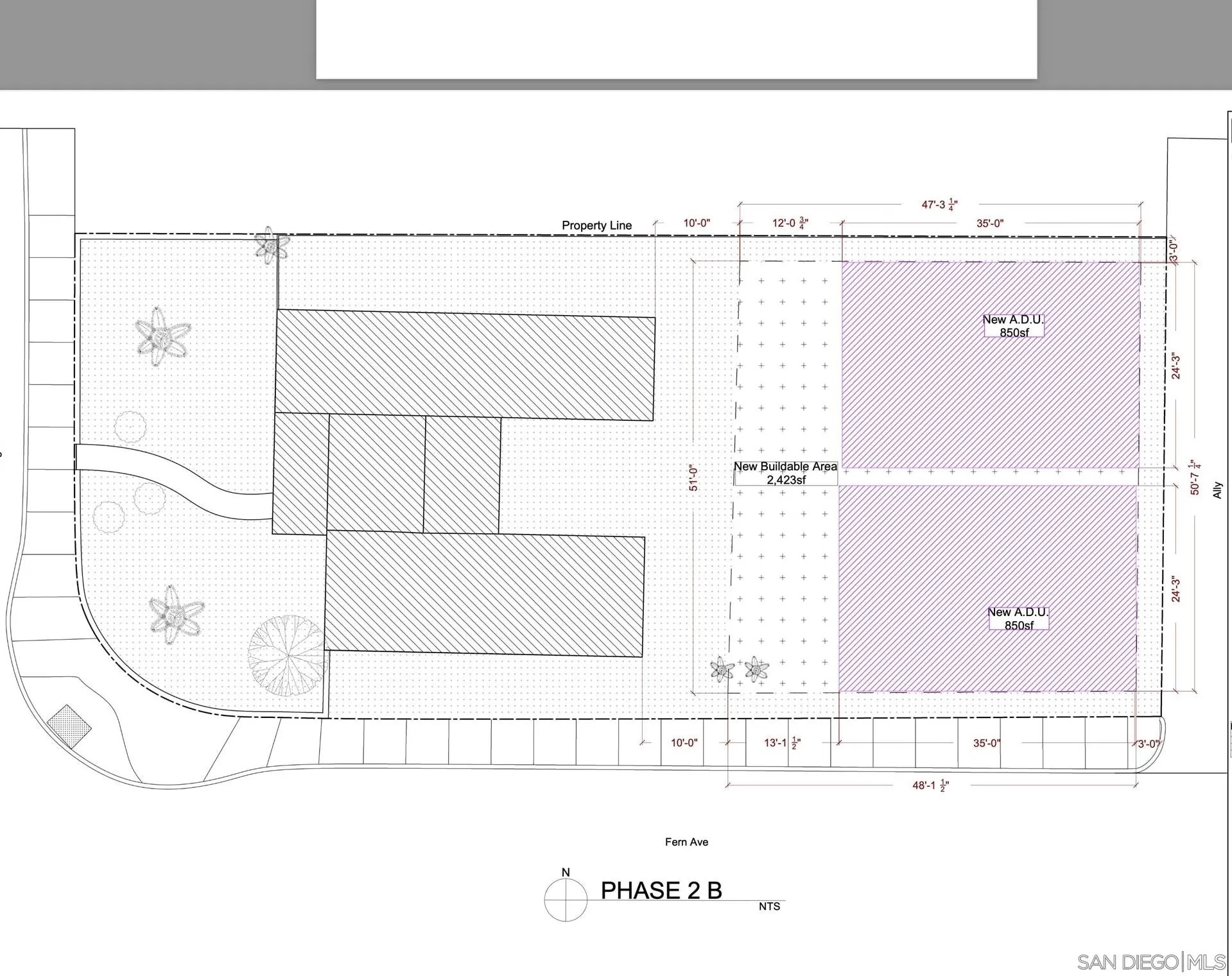
Turn-Key Triplex with Development Upside in Imperial Beach. You can add two ADU in the back and receive Cash Flow. Welcome to 1195 Georgia Street A-C, Imperial Beach, CA 91932 — a rare investment opportunity just minutes from the sand. This fully rented, turn-key triplex offers immediate cash flow with strong in-place income, while also presenting significant upside potential through redevelopment or expansion. Situated on an expansive Corner lot with Alley in an R-3000 zoning area, the property benefits from favorable density allowances—making it ideal for an investor or end-user looking to add units or reconfigure the site for even greater returns. The land value alone offers long-term appreciation and flexibility, with Imperial Beach growth and redevelopment trends continuing to rise. Each of the 3 units is well-maintained and occupied—providing steady income from day one. Whether you're a savvy investor seeking a strong cash-flowing asset or a homeowner aiming to live in one unit while generating income from the others, this property checks every box.Don’t miss your chance to secure a high-potential asset in one of San Diego’s fastest-growing coastal communities.
| 2 weeks ago | Listing updated with changes from the MLS® | |
| 2 months ago | Listing first seen on site |
This information is deemed reliable but not guaranteed. You should rely on this information only to decide whether or not to further investigate a particular property. BEFORE MAKING ANY OTHER DECISION, YOU SHOULD PERSONALLY INVESTIGATE THE FACTS (e.g. square footage and lot size) with the assistance of an appropriate professional. You may use this information only to identify properties you may be interested in investigating further. All uses except for personal, non-commercial use in accordance with the foregoing purpose are prohibited. Redistribution or copying of this information, any photographs or video tours is strictly prohibited. This information is derived from the Internet Data Exchange (IDX) service provided by San Diego MLS®. Displayed property listings may be held by a brokerage firm other than the broker and/or agent responsible for this display. The information and any photographs and video tours and the compilation from which they are derived is protected by copyright. Copyright © 2025 San Diego MLS®.
Last checked 2025
Did you know? You can invite friends and family to your search. They can join your search, rate and discuss listings with you.