11841 HartNorth Hollywood, CA 91605
Due to the health concerns created by Coronavirus we are offering personal 1-1 online video walkthough tours where possible.


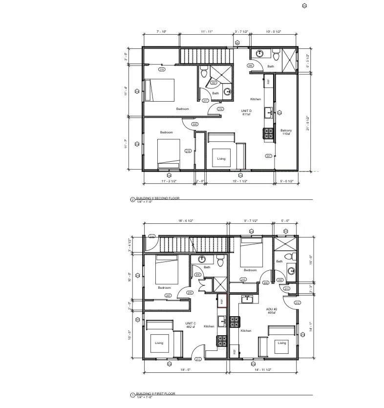
Calling all investors, builders, and developers! RTI development opportunity in North Hollywood with approved plans for a 9-unit project consisting of 3 duplexes with attached ADUs (6 primary units + 3 ADUs). Plans include a mix of unit configurations with primary units generally designed as 2-bedroom layouts, and the site plan reflects three separate buildings with select units featuring balconies, offering a functional layout for future development. Excellent opportunity to step into a project with plans already in place and move directly toward construction. Buyer to verify all information, plans, permits, unit mix, and development potential with the city.
| 15 hours ago | Listing updated with changes from the MLS® | |
| 16 hours ago | Listing first seen on site |
This information is deemed reliable but not guaranteed. You should rely on this information only to decide whether or not to further investigate a particular property. BEFORE MAKING ANY OTHER DECISION, YOU SHOULD PERSONALLY INVESTIGATE THE FACTS (e.g. square footage and lot size) with the assistance of an appropriate professional. You may use this information only to identify properties you may be interested in investigating further. All uses except for personal, non-commercial use in accordance with the foregoing purpose are prohibited. Redistribution or copying of this information, any photographs or video tours is strictly prohibited. This information is derived from the Internet Data Exchange (IDX) service provided by San Diego MLS®. Displayed property listings may be held by a brokerage firm other than the broker and/or agent responsible for this display. The information and any photographs and video tours and the compilation from which they are derived is protected by copyright. Copyright © 2026 San Diego MLS®.
Last checked 2026
Did you know? You can invite friends and family to your search. They can join your search, rate and discuss listings with you.